No
00002
物件名称
住所
諫早市 久山台
用途地域
第1種低層住居地域
価格
4,000万円
指定建ぺい率
50%
指定容積率
80%
駐車場
3台以上
駐車料金
間取り
1階:120.15㎡ 2階:120.15㎡
設備
建築年月日
平成10年4月26日
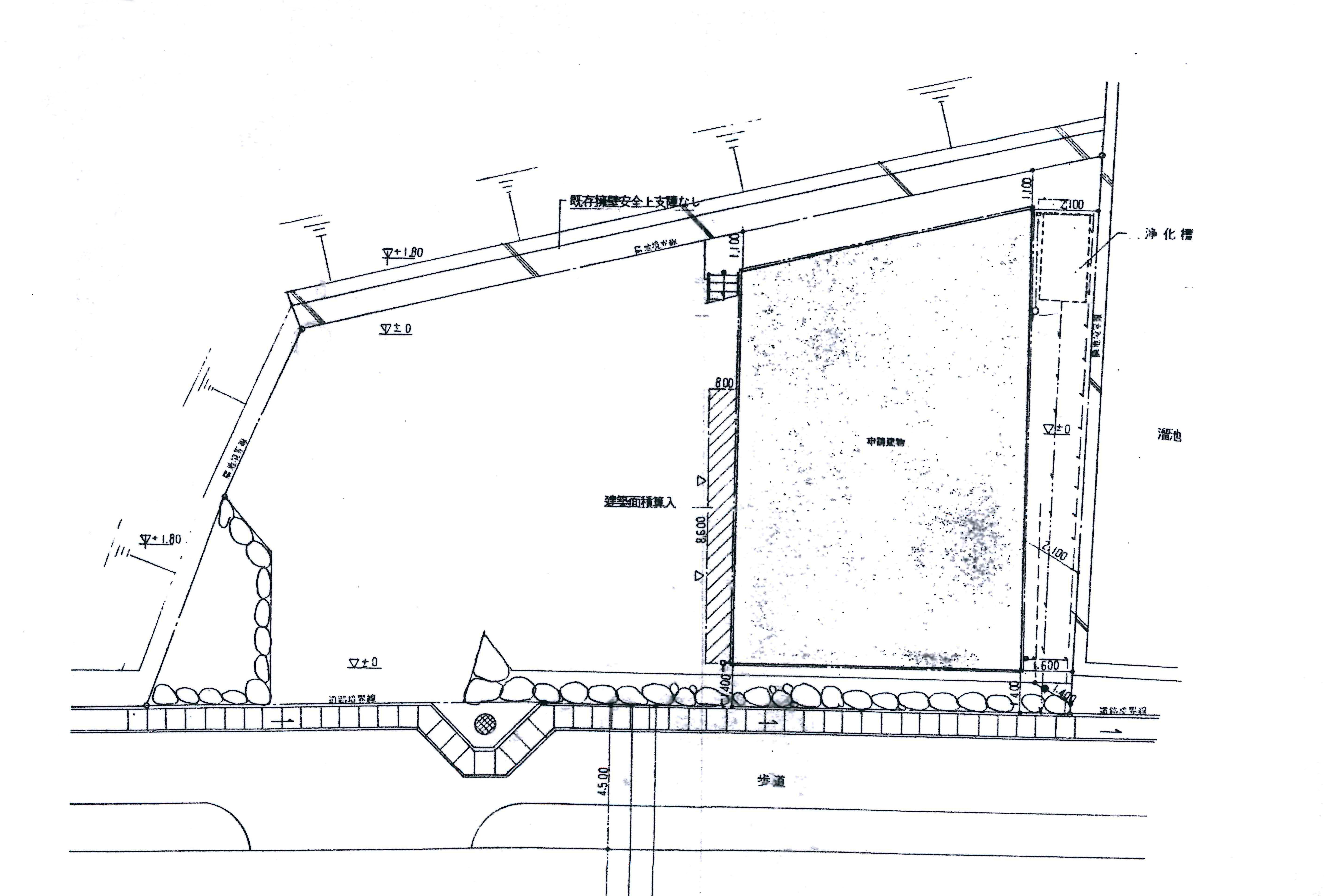
土地面積
351.46m2
坪面積
106.32坪
建物面積
240.30m2
校区
登録日
250526
交通
西陵高校入口まで徒歩3分
取引形態
仲介
備考
引渡時期:2025年12月中旬 諫早インターチェンジまで車で約5分
不動産であなたのYumeを実現!イレブンハウスは長崎県諌早市とその近郊の不動産、賃貸、売買の土地や建物を取り扱っています。

〒854-0073
長崎県諫早市中尾町5-16
ネオシティ中尾101号
0957-26-1317
0957-25-3102
営業時間:9:00~17:00
店休日:土日祝・お盆・年末年始
00002
諫早市 久山台
第1種低層住居地域
4,000万円
50%
80%
3台以上
1階:120.15㎡ 2階:120.15㎡
平成10年4月26日
351.46m2
106.32坪
240.30m2
250526
西陵高校入口まで徒歩3分
仲介
引渡時期:2025年12月中旬 諫早インターチェンジまで車で約5分