No
00132
物件名称
キャスティール五島町
住所
長崎市五島町
号数
505号
家賃
68,000円
共益費
込み
敷金
3ヶ月
駐車場
なし
駐車料金
無し
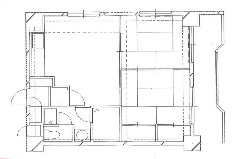
間取り
和6・和6・LDK8
設備
給湯 シャワー 水洗 CATV
建築年月日
面積
50.40m2
坪面積
15.24坪
構造
鉄筋コンクリート造11階建て
校区
登録日
交通
五島町電停徒歩1分
取引形態
仲介
不動産であなたのYumeを実現!イレブンハウスは長崎県諌早市とその近郊の不動産、賃貸、売買の土地や建物を取り扱っています。

〒854-0073
長崎県諫早市中尾町5-16
ネオシティ中尾101号
0957-26-1317
0957-25-3102
営業時間:9:00~17:00
店休日:土日祝・お盆・年末年始
00132
キャスティール五島町
長崎市五島町
505号
68,000円
込み
3ヶ月
なし
無し
和6・和6・LDK8
給湯 シャワー 水洗 CATV
50.40m2
15.24坪
鉄筋コンクリート造11階建て
五島町電停徒歩1分
仲介